نمونه موردی های مسکونی

رجایی اشکان

کاربر حرفه ای
کاربر ممتاز
چند تصویر از نمای بیرونی:

چند تصویر از نمای بیرونی:

در زیر چند تصویر از نمای بیرونی ساختمان را مشاهده میکنیم(این پروژه به نشانه ارادت به عمارت‌های قدیمی ایران، خانه شریفی‌ها، نام گرفته است.(
چند تصویر از نمای داخلی ساختمان:
 

mpb

مدیر تالار مهندسی معماری
مدیر تالار


ویلای اسبورز به درخواست کارفرما در نقطه ای بکر روی تپه ای جنگلی در منطقه ای به نام اسبورز در 20 کیلومتری جنوب شرقی شهر ساری طراحی شده است.​
خلوص, امنیت بالا, داشتن حریم و عدم اشراف از بیرون به داخل بنا و در عین حال فضاهای داخلی دنج و آرام, خواسته های اصلی کارفرما برای طراحی این پروژه بوده است.​
برای طراحی پروژه از خالص ترین فرم هندسی-مکعب-استفاده شده است.تاثیر متقابل خطوط منحنی تپه بر این مکعب باعث شده که این حجم با کمی تغییر خود را به طبیعت نزدیک تر کرده و صلبیت آن کاهش یابد. بنابراین در عین حفظ خلوص حجم اولیه, موجب سیالیت و پویایی آن شده و حجم ارتباط بهتری با محیط طبیعی بر قرار کرده است.​
به منظور حفظ شخصیت توپوگرافی و بکر ماندن سایت,دسترسی به بنا بدون دخل و تصرف در فرم ارگانیک تپه تامین شده است. این دسترسی در جهت حفظ خلوص فرم بنا در زیر ساختمان نیز امتداد یافته و ورود به بنا را از این بخش به صورت عمودی میسر می سازد.​
نوع دیگر بازشوها در این بنا نیز در جهت حفظ یکپارچگی فرم آن است. بدین گونه که دو وجه انتهایی از حجم به شیشه های تمام قد اختصاص یافته و سایر بازشوها با تداومی برگرفته از فرم,بخش جدایی ناپذیر از حجم تشکیل می دهند.​
با آنالیز سازه ای یک مکعب ساده و حجم طراحی شده,مشاهده می شود که فرم طراحی شده کاهش بیش از 50 درصد تنش ماکزیمم در سازه را به وجود می آورد.این بدان معنی است که فرم جدید کاملا بهینه تر از یک مکعب ساده عمل میکند و بر آن برتزی دارد. این رفتار مناسب سازه ای به دلیل فرم خاص ایجاد شده در سطح است.​
دراین مطالعه از مدل پلاستیک مورکولمب که برای مصالحی مانند بتن جواب های دقیق تری نشان می دهد استفاده شده است. تاثیر هندسی حجم بیرونی در داخل ساختمان نیز تبلور یافته و باعث ایجاد حس آرامش و پویایی در فضا شده است. فشار نیروهای حجم در داخل بنا نیز به گونه ای طراحی شده که نوعی تقسیم فضایی مناسب و پیوسته ایجاد کند. بیشترین تاثیر این نیروها در طراحی راه پله ارتباطی طبقات به چشم می خورد که کاملا پیوسته و همگام با فرم اصلی بنا شکل گرفته است.​
طراحی و قرار گیری سایر فضاهای داخلی با توجه به کیفیت مناسب ارتباط دو بازشوی تمام شیشه ای بنا انجام گرفته است.همچنین امکان استفاده مناسب از کوران طبیعی هوا در داخل بنا نیز فراهم شده و در عین حال با ایجاد ارتباط بصری مناسب بین دو بازشوی اصلی,حس احاطه شدن در طبیعت به مخاطب القا می شود.​
در نهایت با قاب کردن طبیعت در فضای داخلی اصلی این بنا تجربه ای جدید برای مخاطب خلق شده تا شور و هیجان طلوع و حس آرامش غروب را در منظر قاب خانه خود مشاهده کند.​

سه بعدی خارج از ساختمان

نمای سه بعدی از فضای داخلی

پلان های ساختمان

برش های طولی و عرضی

پیکره بندی داخلی به همراه آنالیز سازه ای فرم


مـنـــــــبـع : فصلنامه همشهری معماری-شماره 16-رضا نجفیان
 

hadi1525

کاربر حرفه ای
کاربر ممتاز

[FONT=Tahoma, Geneva, sans-serif]
[/FONT]


مترجم: نغمه مقصود

معماری​
برج مسکونی نیویورک ،اعتبار خود را پس از انتقاد از طرح ساده اش که ناشناس و دور از نگاهها باقی مانده بود ، به دلیل خلق فضایی جهت تجربه زندگی منطبق با پویایی زندگی شهری و اجتماعی نیویورک در آینده ، باز می یابد. شهرها به نرمی و بصورت بطئی با تحولات انقلابی تکنولوژی که در دهه گذشته رخ داده است ،تطابق می یابند تحولاتی که پیشرفت دیجیتال و تعاملات فیزیکی با اهمیتی را شامل می شوند.
این تغییرات در طراحی فضای لابی فوق العاده ای که به سمت شهر گشوده می شود به صورت واضح و آشکاری دیده می شوند،مکانی به عنوان فضایی اشتراکی برای کارهای گروهی ،تالار و..... . محلی که تمامی تجربیات حضور درلابی برج های مسکونی را با تکیه بر بهبود اشتراکاتشان، تغییر می دهد . بلوغی تهدید آمیز و رقابت جویانه در شهر نیویورک . برخوردی قاطع برای شهری که امکاناتش را برای جذب همگان به کار می برد. برج مذکور از جایگاهی نامعمول واز سایتی با حدود 8 تا 70 فوت ، در گوشه خیابان 68 غربی محله مادیسون ، محدوده ای در مرکز شهر و محل رفت و آمد هزاران کارمند و کارگر،اوج گرفته است.












تحریریه
معماری آرل​
مترجم: نغمه مقصود
منبع: EVOLO.US
 

hadi1525

کاربر حرفه ای
کاربر ممتاز


مترجم: مهرداد نجیب زاده
افزایش دانش آموزان و دانشجویان در دانمارک، سکونت را در این کشور مشکل ساز کرده است.
هزینه بالای محل سکونت و رشد رو به گسترش دانشجویان خارجی، از مشکلات عمئه برنامه ریزی شهری این کشور به شمار می رود.
به همین خاطر، برنامه ای جامع،کاربردی و مفهومی برای این کشور ئر نظر گرفته شده است.
برای پاسخ به نیاز چنین مشکلی، گروه معماری 3XN با همکاری ینس ریچارد پدرسن، طرح یک مجتمه مسکونی مرتفع و ارزان قیمت را پایه گذاری کرده اند.
این برج در آینده به عنوان منبعی الهام بخش به شمار می رود تا در هر سایت و شرایط اقلیمی قابل اجرا می باشد.
فرم طبقاتی و نورگیر بودن چنین طرحی در هر نقطه، از خصوصیات مهم و استثنایی آن به شمار میرود.بخصوص هزینه مناسب اجرای آن از مهمترین دستاورد های طراحان به شمار می رود.







همانطور که مشاهده می کنید، به تازگی مدل های این طرح منتشر شده است. کلین حجم این بنا از سطح خیابان شروع می شود و به صورت نیم دایره مرتفع شده است.
فرم دوار این مجتمع با الهام گرفتن از برج تاریخی آب که نزدیک به این طرح واقع شده، شکل گرفته است.
این برج دارای 31 طبقه و 95 متر ارتفاع می باشد. این آپارتمان ها به صورت سه خوابه طراحی شده اند.
برخی واحد ها کوچکتر می باشد، اما یک سوئیت کامل برای دو نفر به حساب می آید تا فضایی بزرگتر و راحت تر را در اختیار داشته باشند.
برای هر واحد بالکن تعبیه شده تا منظره ای مناسب از شهر را برای ساکنین به ارمغان بیاورد.







منبع: archdaily.com
 

hadi1525

کاربر حرفه ای
کاربر ممتاز


مترجم: مهرداد نجیب زاده

طرح ویلای هولمن در ارتفاعات سیدنی واقع شده است. این ویلا توسط گروه معماری Durback Block Jaggers طراحی شده است.
پلان این طرح با برنامه ای جالب و ویژه بر روی یک صخره به ارتفاع 70 متر قرار گرفته است.طرح این ویلا بر اساس یکی از نقاشی های سبک کوبیسم، پیکاسو شکل گرفته است.
کلین فرم این بنا بر اساس کانسپت نقاشی پیکاسو شکل گرفته که دارای خطوط شکسته و خمیده در پلان مجموعه می باشد تا با انطباق با جهت نور مناسب و چشم اندازی زیبا را برای ویلا به ارمقان بیاورد.



فضاهای نشیمن و پذیرایی بیشتر ور به منظره اقیانوس قرار گرفته است. در پی بنا، دیوارها با صخره های خشن تیره بنا همپوشانی شده است تا بهترین ادغام را با توجه با کانسپت ترکیبی پیکاسو شکل دهد.
خطوط نامنظم طرح در ترکیب با خطوط خشن و غیرمنظم طبیعت، منظره ای فوق العاده خلق کرده است.
با توجه به اینکه چنین کانسپت طرح بر اساس کار پیکاسو بوده، اما می توان خصوصیات سبک ارگانیک را در این طرح مشاهده نمود.































منبع: architectism.com
 

hadi1525

کاربر حرفه ای
کاربر ممتاز

مترجم: مهرداد نجیب زاده
معمار: Karand Group
موقعیت بنا: ساوه، ایران
متراژ: 450 متر مربع
سال اجرا: 2013

این ویلا در شهر ساوه، نزدیک 70 کیلومتری تهران بزرگ واقع شده است.
این ویلا در حدود 6015 متر مربع می باشد که در نزدیکی یک روستا قرار دارد. کارفرمای این پروژه یک روزنامه نگار بوده و درخواست طراحی یک ویلا در نزدیکی مزرعه خانوادگی خود را داشته است.
وی خواستار طراحی یک ساختمان مدرن با خلوص های معماری ایرانی را داشته است.
با توجه به نیازهای کارفرما و قرار گرفتن سایت پرژه در یک منطقه گرم و خشک، فضایی مانند کوشک در پلان آن طراحی شده است تا نیازهای اقلیمی و سنتی معماری پارسی را در خود جای دهد.
کوشک در فضاهای امروزی به عمارت کلاه فرنگی (پاویون) شهرت دارد که بیشتر به یک بالکن نیمه باز شباهت دارد و یک نوع معماری برون گرا به حساب می آید.




در نخستین گام از چهار عنصر اصلی و طبیعی (آب،باد،خاک،آتش) به عنوان کانسپت و ویژگی های غالب پروژه استفاده شده است که مفهوم اولیه معماری فارسی به شمار می رود.
در میان این عناصر، آب به عنوان یک عنصر طبیعی و خالص به شمار می رود. بنا بر این فرض، آب به عنوان مفهوم طراحی و پایه اصلی بنا در نظر گرفته شده است.
همچنین می توان کاربری استخر را هم به این مفهوم اضافه کرد.
مچنین این استخر جهت آبیاری فضای سبز ویلا به کار می رود. علاوه بر جنبه های زیست محیطی آب در این طرح، تصویر بصری و انعکاس آن در آب نیز از ویژگی های طراحی آن به شمار می رود.



به دنبال اصول طراحی کوشک، چهار دیوار (چهار عنصر)، در هر گوشه از ساختار مکعب به صورتی جداگانه و با نگرش به اقلیم در معماری گرم و خشک طراحی شده است.
انی فضاها به شکل محفظه های بسته و نیمه باز طراحی شده است. فضاهای درونی به وسیله پوسته ای محافظت شده تا در برابر نور مستقیم خورشید مقاوم باشد.














منبع: archdaily.com & karandgroup.com
 

masoud-architect

عضو جدید
کاربر ممتاز


مترجم: مهرداد نجیب زاده​
شرکت معماری A-Cero طرح ویلای موج در سواحل مدیترانه اسپانیا را به نمایش گذاشته است. این ویلا با سبکی متمایز و با مدیریت معماران این شرکت: خواکین تورس و رافائل لامازارس طراحی شده است. طرح این دو نفر در طی چند سال گذشته دارای تغییرات زیادی بوده است. از جمله می توان به حرکت و خطوط موجدار به کار رفته نما اشاره کرد. ولی صرفاً این ویلا به عنوان یک خانه مسکونی تک خانواری طراحی شده است سایت پروژه منحصربه فرد و مناسب چنین طرحی است. با توجه به اقلیم گرم و مرطوب این منطقه، خطوط به کار رفته در نما، از اقدامات و خلاقیت های طراحی به شمار می رود.

.


با توجه به این که متراژ این طرح فقط 1000 متر میباشد، طراحان به خوبی توانسته اند عرصه ها را در سه طبقه طراحی کنند. زیرزمین با پارکینگ، بخش خدماتی و تأسیسات، طبقه همکف با فضاهای عمومی ( نشیمن و پذیرایی)، و طبقات بالاتر با اتاق های شخصی اعم از اتاق خواب طراحی شده است. تمام فضای داخلی به دلیل طراحی گسترده پنجره های بزرگ از نور طبیعی بهره می برند. هر طبقه دارای تراس بزرگی می باشد که فیلتر طراحی مناسبی برای ورود نور به قسمت نشیمن ساختمان در شرق بنا می باشد. همچنین یک استخر بر روی پشت بام واقع شده تا طراح از تمام فضاهای منفی ومثبت، حداکثر استفاده را ببرد. هر چهار طرف ساختمان نمای متفاوتی را نشان می دهند تا الگوی کلی را از یکنواختی خارج کنند. ولی در عین حال از الگوی مشابهی برای طراحی استفاده شده تا تعادل کل بنا حفظ شود.

.


.


.




.


.


.
.



.



.


.


.


 

mpb

مدیر تالار مهندسی معماری
مدیر تالار
[h=1]گروه اجرا و توسعه پروژه های ساختمانی دیپلمات[/h]بنا به گفته بازدیدکنندگان این بنا، در نگاه اول بهترین کلمات برای توصیف آن سادگی و تفاوت است. این بنای متفاوت نماد سادگی و کیفیت در کارهای گروه دیپلمات می باشد.

جزپیات:
نوع پروژه:

مسکونی


وضعیت پروژه:

اتمام یافته


تعداد واحدها:

21


تعداد طبقات:

14



متراژ ساخته شده:
7800












منبع:www .dbg-co.com
 

mpb

مدیر تالار مهندسی معماری
مدیر تالار
گروه اجرا و توسعه پروژه های ساختمانی دیپلمات
دیپلمات زعفرانیه بنایی طراحی شده با ویژگی های خاص معماری ایرانی در منطقه زعفرانیه است. پس از ورود به این ساختمان چشم انداز زیبای تهران تا مدت ها در خاطر شما می ماند.




نوع پروژه:

مسکونی


وضعیت پروژه:
اتمام یافته


تعداد واحدها:
20


تعداد طبقات:

9


متراژ ساخته شده:
10101















منبع:www .dbg-co.com
 

mpb

مدیر تالار مهندسی معماری
مدیر تالار
گروه اجرا و توسعه پروژه های ساختمانی دیپلمات
دیپلمات الهیه بنایی مدرن و متفاوت در موقعیتی منحصر بفرد و چشم اندازی براستی نادر از کوه های سر به آسمان ساییده ی پایتخت می باشد. این سخن یکی از از بازدیدکنندگان این بناست.

نوع پروژه:

مسکونی



وضعیت پروژه:
اتمام یافته


تعداد واحدها:
10


تعداد طبقات:
16



متراژ ساخته شده:
7267












منبع:www .dbg-co.com
 

mpb

مدیر تالار مهندسی معماری
مدیر تالار
گروه اجرا و توسعه پروژه های ساختمانی دیپلمات

دیپلمات فرمانیه معنای کیفیت در ساخت و کیفیت زندگی شهروندان را با ظرافت به هم پیوند می دهد.


نوع پروژه:

مسکونی



وضعیت پروژه:

اتمام یافته



تعداد واحدها:
40


تعداد طبقات:
13


متراژ ساخته شده:
15779























منبع:www .dbg-co.com
 

mpb

مدیر تالار مهندسی معماری
مدیر تالار
گروه اجرا و توسعه پروژه های ساختمانی دیپلمات

به گفته یکی از ساکنین "آرامش" و "کیفیت بالای زندگی" از ویژگی های برجسته دیپلمات کاج است.




نوع پروژه:
مسکونی


وضعیت پروژه:
اتمام یافته


تعداد واحدها:
42


تعداد طبقات:

13


متراژ ساخته شده:13174


















منبع:www .dbg-co.com
 

mpb

مدیر تالار مهندسی معماری
مدیر تالار
گروه اجرا و توسعه پروژه های ساختمانی دیپلمات

برج آبی اولین بنای بلند مرتبه گروه دیپلمات و یکی از شناخته شده ترین آنها در پایتخت و منطقه سعادت آباد می باشد.

وضعیت پروژه:
اتمام یافته



تعداد واحدها:

52


تعداد طبقات:
17


متراژ ساخته شده:
11500










منبع:www .dbg-co.com
 

mpb

مدیر تالار مهندسی معماری
مدیر تالار
[URL="http://www.www.www.iran-eng.ir/showthread.php/608411-%D8%AF%D9%81%D8%AA%D8%B1-%D9%85%D8%B9%D9%85%D8%A7%D8%B1%DB%8C-%D8%A7%DB%8C%D8%B1%D8%A7%D9%86%DB%8C-%DA%AF%D8%B1%D9%88%D9%87-%D8%A7%D8%AC%D8%B1%D8%A7-%D9%88-%D8%AA%D9%88%D8%B3%D8%B9%D9%87-%D9%BE%D8%B1%D9%88%DA%98%D9%87-%D9%87%D8%A7%DB%8C-%D8%B3%D8%A7%D8%AE%D8%AA%D9%85%D8%A7%D9%86%DB%8C-%D8%AF%DB%8C%D9%BE%D9%84%D9%85%D8%A7%D8%AA"]گروه اجرا و توسعه پروژه های ساختمانی دیپلمات
[/URL]
فرم هرمی شکل این برج امکان طراحی جدیدی برای ساخت آپارتمان هایی متفاوت در اختیار گروه دیپلمات قرار داد.

نوع پروژه:
مسکونی



وضعیت پروژه:
اتمام یافته


تعداد واحدها:
36


تعداد طبقات:
18


متراژ ساخته شده:
10169










منبع:www .dbg-co.com
 

mpb

مدیر تالار مهندسی معماری
مدیر تالار
گروه شرکتهای ساختمانی ایرانیان اطلس

معرفی پروژه
برج مسکونی «اطلس کیش» در زمینی به مساحت ٣٤١٠ مترمربع و با زیربنایی به مساحت ١٩,٠٣٥ مترمربع، در حاشیه میدان پرشین گلف جزیره کیش واقع شده و ‌هم‌اکنون آماده بهره‌برداری است. این برج به‌دلیل دسترسی آسان به‌ساحل، مراکز مختلف تجاری، تفریحی و خدماتی و دسترسی به‌خیابان‌های اصلی جزیره، در یکی از بهترین منطقه‌های جزیره کیش قرار گرفته است.
سرمایه‌گذار این پروژه، «گروه شرکت‌های ساختمانی ایرانیان اطلس» است. شرکت «مهندسین مشاور طرح و اندیشه شیوا اطلس» که از زیرمجموعه‌های گروه شرکت‌های ساختمانی ایرانیان اطلس است، مدیریت طرح و مشاوره فاز ٣ پروژه را عهده‌دار است. همچنین فعالیت‌های بازاریابی و فروش این برج را شرکت سرمایه‌گذاری «ایران اطلس کیش (ایاک)» که یکی دیگر از زیرمجموعه‌های گروه شرکت‌های ساختمانی ایرانیان اطلس است، انجام می‌دهد. طراحی این مجموعه را آقای مهندس دزفولیان و اجرای آن را «شرکت بهسرا» انجام داده است.
گفتنی است طراحی اولیه این ساختمان در قالب مسابقه بین مشاوران مطرح انجام گرفت، طرح‌ها برای داوری و انتخاب طرح برنده، در یکی از نمایشگاه‌های صنعت ساختمان در جزیره کیش در معرض بازدید عموم قرارگرفت. حجم زیبای کنونی، همان طرحی است که بازدیدکنندگان داوری و انتخاب کرده‌اند.
موقعیت قرارگیری برج مسکونی اطلس کیش بسیار عالی است. دسترسی پیاده در کمترین زمان به اسکله تفریحی، ورزش‌های آبی، والیبال ساحلی، پلاژ آقایان، بازارهای معروف، مسیر دوچرخه‌سواری و همچنین دسترسی آسان به مراکز اصلی اداری، تجاری و سایر نقاط مهم جزیره به دلیل نزدیک بودن به بلوار اصلی، از دیگر دلایل خاص بودن موقعیت این برج است.
از آنجایی که این ساختمان بسیار به دریا نزدیک است، واحدها و باغ‌بام آن دارای بهترین دید به ساحل است.
طراحی، ساخت و نظارت بر ساخت این برج با همکاری مهندسان مشاور و پیمانکاران ماهر و توانمند انجام شده است و به دلیل حساسیت‌های طراحان و مشاوران آن، تلاش شده است که در تمام مراحل، همۀ مقررات ملی ساختمان، مانند الزامات عمومی ساختمان در طراحی پنجره‌ها و جان‌پناه‌ها (موضوع مبحث چهارم) و نصب علائم و تابلوها (موضوع مبحث بیستم) و مباحث عمده مرتبط با صرفه‌جویی در مصرف انرژی (موضوع مبحث نوزدهم) به دقت رعایت شود.
انجام آزمایش‌های بتن، مواد و مصالح تشکیل‌دهنده آن، آزمایش مصالح فلزی، تست جوشکاران، تست‌های جوش، رنگ‌آمیزی اسکلت برای مقابله با خوردگی مطابق شرایط مبحث دهم و انجام تست‌های اندازه‌گیری ضخامت رنگ‌آمیزی، اجرای پوشش‌های محافظ اسکلت فلزی ساختمان در برابر حریق و حتی رنگ‌آمیزی اسکلت زیرسازی نما مطابق شرایط مبحث دهم، از دیگر مقرراتی است که در این پروژه به دقت بر رعایت آن نظارت می‌شود.
استقرار دستگاه نظارت مقیم در طول اجرای پروژه نیز بر افزایش کیفیت اجرا تأثیر گذار بوده است.
از سوی دیگر، استفاده از بهترين و مرغوب‌ترين مواد، مصالح و تجهيزات، همواره سرلوحه کار کارفرما، مشاور و پیمانکار پروژه قرار داشته است.

مشخصات پروژه

طبقه تعداد واحدها
مساحت واحدها
مساحت تراس اختصاصی
مساحت تراس داخلی
همکف ٥ ٤٢٠ ٣١٢٤
١ ٨ ٧١٥ ٦٧
٦٦
٢ ٨ ٧١٥ ٠
٦٦
٣ ٨ ٧٠٦ ٦٧
٧٣
٤ ٨ ٧٠٥ ٠
٧٥
٥ ٨ ٧٠٠ ٦٧
٧٨
٦ ٨ ٦٩٥ ٦٧
٨٧
٧ ٨ ٧٠٦ ٦٧
٧٣
٨ ٨ ٧١٥ ١٢
٦٦
٩ ٨ ٧٠٥ ٦٧
٧٥
١٠ ٨ ٧١٥ ٦٧
٦٦
١١ ٨ ٧٠٠ ٠
٧٧
١٢ ٧ ٦١٥ ٦٧
٣٥
١٣ ٥ ٤٢٢ ٣٨
٢٧
١٤ ٤ ٣٢٣ ١٥
٢٣

موقعیت پروژه

نشانی : کیش
















منبع:www .iranianatlas.ir
 

hadi1525

کاربر حرفه ای
کاربر ممتاز
[معماری معاصرایران] معماری ویلای امیر-کرج

[معماری معاصرایران] معماری ویلای امیر-کرج



معمار:علیرضا تغابنی
موقعیت: ایران،کرج
مهندس ناظر:علیرضا تغابنی
سال ساخت:2011

ویلای امیر که در باغ محمد سحر واقع شده،فقط چند کوچه دورتر از شهر کرج واقع شده است.با وجود قوانین شهری و قوانین تراکم ساختمان،به دلیل سرعت افزایش ساخت و ساز و رشد وحشی ساختمان ها،فاصله بین باغ وشهر را کم کرده است.



به علت فرار از مشگل توسعه بی برنامه سازه های شهری(بی برنامه گی در طرح و کاربرد متریال درست در نما)طراحی این ساختمان با توجه به گسترش میزان متراژ ساختمان در ارتفاع آن تأثیر گذاشته است(میزان گسترش طولی و عرضی با میزان تراکم طبقات همپوشانی و رابطه مستقیم دارد).بر خلاف تمایل کارفرما که یک خانه دو طبقه که قرار داشتن اطاق های خواب در بالا(Douplex) را خواستار بود،یکساختمان یک طبقه پیشنهاد شد.با توجه به فعالیت های خصوصی که در این مکان برنامه ریزی شده در پشت این فضای عمومی یک فضای عمومی که با همان ارتفاع عمودی(بدون تغییر سطح در سایت)که توسط یک پل شیشه ای این فضاها به هم مرتبط شده است.



این ویلای تابستانه توقع خانواده ی بزرگتر و حتی اقوام را به عنوان یک محیط آرامش بخش فراهم می آورد که بتوانند در یک زمان و با هم آخر هفته های شاد و مناسبی را سپری کنند.این مجموعه دو قطبی دارای طرح پیشنهادی از طرف شهرداری که شامل سطوح پلاستیکی،راست زاویه،خشن و دارای بافت براق می باشد.




اما با تقویت ساختار و مصالح،دید بازی رو بهباغ به وجود آمده است.با ارزیابی شرایط موجود،خواص خاک و شرایط اقلیمی،و با توجه به نوع کاربری مصالح بومی در منطقه از کاه برنج برای تقویت مصالح استفاده شده است.ماهیت این خطوط خمیری،این امکان را به ما میدهد که روی سطوح صاف و لبه های تیز و ناپیوسته را کنترل و با گذاشتن سرپوش روی آن از خشونت آن کاسته شود.حجم کلی خانه سابق با اتصال یک جعبه کوچکتر به عنوان یک بخش یا موجود جدید،با اضافه شدن به این ویلا یک سطح صاف و منحصر به فرد به فرم کلی بخشیده است.





با توجه به تفاوت خانه جدید نسبت به خانه قدیمی،کف مجموعه ساده و معمولی نیست،بلکه با ایجاد یک فضای شاعرانه که توسط یک کف شیشه ای و حباب های نور و همچنین گذر آب از این مجموعه به زیبایی هر چه تمام تر این ویلا کمک کرده است.









مترجم :مهرداد نجیب زاده

منبع : گروه معماری آرل
 

hadi1525

کاربر حرفه ای
کاربر ممتاز



خانه بنفش یا "purple house" از سنگ ،سیمان و بنفش ساخته شده است و معمار ایتالیایی antonino cardillo خانه را فراتر از فرم طراحی کرده است و با بهره گیری از دانش معماری ، تصویری از تاریخ را صادقانه و بی طرفانه ارائه داده است.
خانه بنفش در شهر pembrokeshire شده است که ریشه در اکتشافات روم شرقی مانند جزیره سیسیل ، انگلستان و ایرلند که فرهنگ آنها در طول سال تغییر کرده و در نهایت فرهنگ غالب بر جامعه حاکم شده است.

طراحی خانه بنفش بر اساس تاریخ و فرهنگ و ترکیب حال و به گذشته صورت گرفته است.



به گفته خود معمار خانه بنفش نشان دهنده سفری ناخودآگاه و شخصی به تاریخ و میراث شخصیت نورمن است که با کاوش در عناصرگوناگون و تجربه مسیرها ، هدف مشترک از دست رفته "تبادلات فراموش شده بین انگلستان، ولز، ایرلند و سیسیل چه بود؟"دوباره بازسازی شود.




فرم های یکپارچه در معماری خانه بنفش ماهیت دوگانه ای را ایجاد کرده است. روشن کردن فضاها در شرایط مختلف با جذب و فیلتر کردن نور در طول روز در برابر دیوارهای ضخیم و محکم که باهم در تقاطع هستند صورت گرفته است.

در طول روز خانه مانند منشور پر نور و مانند بوم نقاشی سایه و رنگ های منحصر به فرد خود بر روی دیوار و سقفهاست. در شب به علت عدم وجود نور ، سنگین اشیا مشهود می شود و فضای غار مانند دارد که حس تاریخی و بازگشت به دوران ماقبل تاریخ را یادآور می شود و پل برای ارتباط بین فرهنگ قدیم و جدید است.





















پلان های خانه بنفش





















منبع: گروه معماری آرل ، designboom
مترجم : مسعود فلاح
 

mpb

مدیر تالار مهندسی معماری
مدیر تالار

برای مبارزه با واقعیت های خشن ناشی از آلودگی شدید هوا ناشی از گسترش سریع شهر تهران، آتلیه طراحی CAAT طرحی خاص را پیشنهاد داد.
اعضای این تیم به شرح زیر می باشند؛ آقایان مهدی کامبوزیا (Mahdi Kamboozia)، علیرضا اسفندیاری (Alireza Esfandiari)، نیما دهقانی (Nima Dehghani) و محمد اشکان سفات (Mohammad Ashkebar sefat). طراحی آسمان خراشی عظیم در بافت میانی شهر تهران و لابلای توده های مسکونی شهر، اتفاقی که منجر به تخریب بسیاری از ساختمان های قدیمی اطرافش خواهد شد. تهران، پایتخت ایران و شهری است بسیار آلوده، که در مرکز کشور قرار دارد. 80 درصد آلودگی شهر، ناشی از ترافیک خودروها می باشد. طبق آماری که بدست آمده، از میان 8 و نیم میلیون ساکنان تهران، روزانه 27 نفر از بیماری های مربوط به آلودگی می میرند. طراحی برجی بر روی دو پا، ایده ای بود که باعث می شد زمین های با ارزش زیادی را نجات دهد. این آسمان خراش حدود 1200 مترمربع از زمین را اشغال می کند، در صورتی که اگر قرار بود به مانند یک برج معمولی طراحی شود، حدود 30 هزار مترمربع را اشغال می کرد.

شکل اصلی این برج از مقرنس های سنتی ایران و سیستم های طاق و کابل الهام گرفته است. یک فضای مقعر شکل بین دو ستون برج، بوجود آمده که واحدهای مسکونی در این ناحیه قرار می گیرند. در دو پایه ستون مانند، فضاهای پارکینگ لحاظ شده که کمک بسیاری به سبکی وزن سازه و مقاوت آن می کند و باعث می شود ساختار این برج به نحوی شود که در برابر نیروهای ناشی از زلزله بسیار منعطف عمل کند.
در بالاترین قسمت این آسمان خراش، بام سبز بسیار بزرگی وجود دارد که فضایی بسیار لذت بخش را ایجاد کرده است. ارتفاع گرفتن واحدهای مسکونی از زمین، آلودگی ترافیک و صوتی را برای ساکنان کاهش خواهد داد. در ضمن طراحی به نحوی صورت گرفته که در ساختاری ظریف، بیشتر فضاها در سایه باشند و ساکنان را در برابر نور خورشید محافظت کنند. و به نظر می رسد این طرح و طرحهایی مشابه، آینده تهران را دگرگون خواهد کرد و بعد از تهران، کم کم نوبت به سایر شهرها می رسد.
















منبع:arthut.co
 

mehdi.chem

مدیر تالار شیمی
مدیر تالار
کاربر ممتاز
ساختمانی در تهران که طرح آن سوژه جهانی شد

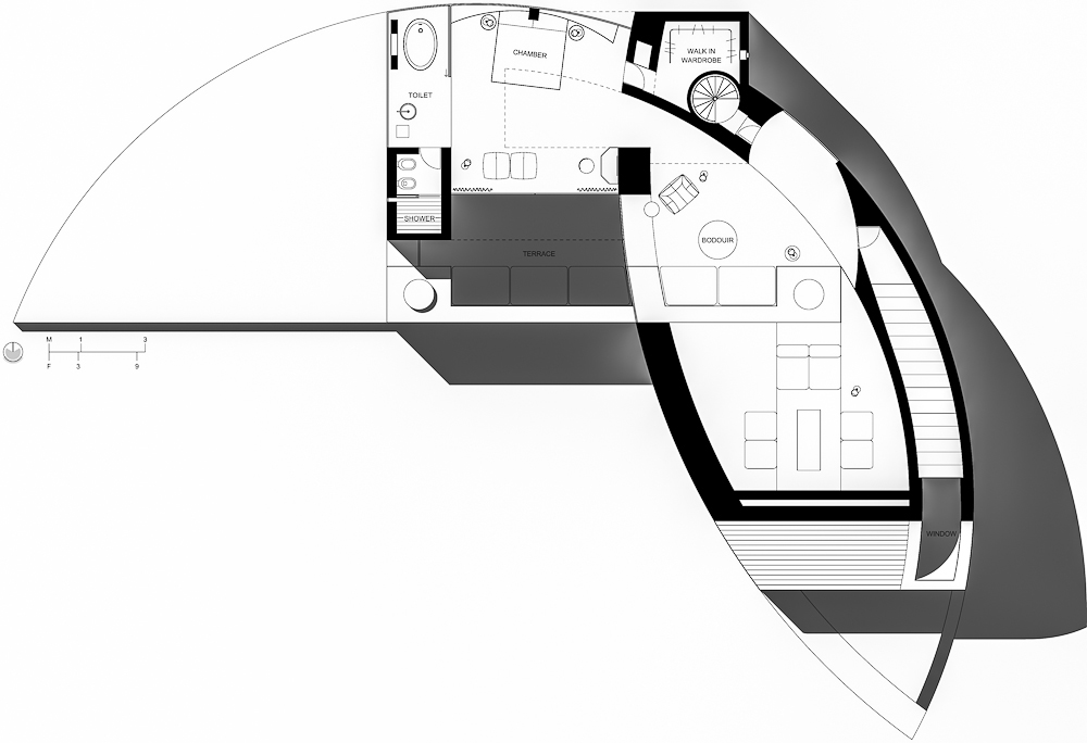
طراحی جالب یک خانه در منطقه دروس تهران که اتاق های آن سیار بوده و رو به آفتاب می چرخد در هفته های گذشته در رسانه های بین المللی بازتاب گسترده ای داشته است. معماران ایرانی ساختمانی هفت طبقه را در محله “دَروس” در شمال تهران طراحی کرده‌اند که دارای سه اتاق “متحرک” است.
روزنامه “دیلی‌میل” در گزارشی مصور از ساختمان “شریفی‌ها” در تهران نوشت: “به نظر می‌رسد که آینده دنیای خانه‌های مسکونی را یافته‌ایم و این آینده در ایران است”. به نوشته دیلی میل، ساختمان شریفی‌ها از بسیاری جهات با یک ساختمان معمولی تفاوت دارد و فهرست ویژگی‌های این اثر مدرن معماری به اتاق‌های متحرکش ختم نمی‌شود.
این ساختمان ۷ طبقه(با طبقات زیر زمین و همکف) دارای ۳ اتاق متحرک است. این بنا که با نام ساختمان “شریفی ها” شناخته می شود، یک باشگاه داخلی، یک استخر و دو آشپزخانه، چند فضای باز “تراس” داشته و به نسبت مساحت زمین زیربنای مفید زیادی دارد. با فشار یک دکمه سه اتاق بیرونی یعنی اتاق صبحانه، اتاق میهمانان و اتاق کار شروع به چرخیدن می‌کنند و رو به خیابان سه فضای جدید “تراس” می‌آفرینند که این عملکرد علاوه بر افزایش نورگیریِ فضای درونی (بسته به کاربری اتاق) موارد استفاده زیادی دارد. هر یک از این سه اتاق (که از بیرون مثل جعبه‌هایی چوبی هستند) بر روی پایه‌ای چرخان استوار هستند. در طول زمستان‌های سرد، می‌شود اتاق‌ها را بست و از هدر رفتن حرارت جلوگیری کرد و در طول ماه‌های گرم تابستان هم گشودن اتاق‌های فوق به تهویه هوای محیط کمک کرده و فضا را از هوای تازه پر می‌کند.
این خانه دو زیرزمین دارد که باشگاه ورزشی داخلی و دیگر تسهیلات رفاهی ساختمان، از جمله میز بیلیارد، را در خود جای داده است. طبقه همکف محل پارک خودرو‌ها و نیز برای سکونت سرایدار پیش‌بینی شده است. طبقات اول و دوم فضاهای مسکونی اصلی ساختمان است و آشپزخانه، اتاق نشیمن و حتی فضای مخصوص پیانو را در این بخش می‌توان دید، در دو طبقه بالایی اتاق‌ خواب‌ها، حمام‌ها، یکی از آشپزخانه‌ها و فضای زندگی اضافه پیش‌بینی شده است.
سخنگوی شرکت سازنده این ساختمان گفت: “بسته به نیاز‌های کاربران این ساختمان خود را هماهنگ می‌کند. بسته به اینکه مهمان داشته باشید یا نه، اتاق مهمانان در طبقه دوم را می‌شود برای مقاصد مختلف چید و تغییر داد. به همین ترتیب اتاق‌ کار و اتاق صبحانه نیز بسته به خواست ساکنان تغییر می‌کند. به گفته سخنگوی این شرکت، “خانه سنتی ایرانی” منبع اصلی ایده این پروژه بود، چراکه در خانه‌های سنتی ایرانی دو اتاق اصلی وجود داشت، یکی برای فصول گرم و دیگری برای فصول سرد.
یکی از طراحان خانه شریفی‌ها هم گفت: “ما با ایده انعطاف‌پذیری شروع کردیم و به این فکر کردیم که ساختمان‌ها نماهای متغیری داشته باشند؛ ایده ساختمانی که هم درونگرا باشد و هم برونگرا. همچنین مطالعه اقلیم تابستانی شمال تهران (معتدل) و اقلیم زمستانی آن (سرد)، ما را به سمت و سوی آن سوق داد که چگونه می‌شود در زمستان حجمی بسته، بدون تراس با پنجره‌هایی کوچک داشته باشیم و در تابستان حجمی شفاف و باز با تراس‌هایی عمیق و وسیع و پنجره‌هایی بزرگ.”
وی افزود: “طرح مکعب گردان با تغییری در حجم و فضای خانه، نوعی معماری غیرقطعی به وجود می‌آورد که به خواسته‌های ما در زمستان و تابستان جواب مناسبی می‌داد.” این ساختمان در منطقه ۳ تهران در محله دروس طراحی شده است. این ساختمان در بخش طراحی خانه در جشنواره معماری جهان در فهرست نامزدهای دریافت جایزه قرار گرفته است. این همه موجب شد تا ایران دیگر با خانه‌های آینده‌نگر بیگانه نباشد و در جشنواره معماری جهان بعد از استرالیا با چهار نامزد دریافت جایزه در مقام دوم بایستد.



 

mpb

مدیر تالار مهندسی معماری
مدیر تالار

بوداپـست (Budapest) پایتخت کشور مجارستان و بزرگترین شهر این کشور است. این شهر بعلاوه مرکز فرهنگی، اقتصادی، سیاسی و صنعتی مجارستان نیز می باشد.
بوداپست از دو بخش بودا و پست تشکیل شده که اولی در کرانه باختری (سمت راست) رود دانوب و دومی در سمت خاوری این رود واقع شده اند. مساحت این شهر حدود 525 کیلومتر مربع است و به هیچ شهرستانی وابسته نیست و بصورت مستقل از سازمان استان بندی کشور مجارستان اداره می شود. در ضمن بوداپست، یکی از بزرگترین شهرهای عضو اتحادیه اروپا می باشد. پروژه سیمپلون- آ (Simplon_A) در جنوب غربی این شهر، به عنوان بخش مسکونی در طرح توسعه قرار داشت و خیلی زود به قطعه ای رنگارنگ در یکی از خبایان های بوداپست، تبدیل شد.

این ساختمان در سال 2008، توسط گروه T2.a Architects طراحی شد. بنایی که در کنار مجموعه ساختمان های مدرن همسایه اش که در سال 1960 ساخته شده بودند، قرار گرفت. واحدهای این آپارتمان همگی بزرگ اند و رنگ هایی در نمای این واحدها دیده می شود که در هر طبقه متفاوت هستند؛ رنگهای زرد، نارنجی، قرمز، سبز و آبی فیروزه ای، که بر روی درب واحدها دیده می شوند؛ که علامت تفکیک واحدها از همدیگر می باشند. در ضمن ساکنین واحدها به خوبی با تراس روبروی خود، ارتباط برقرار می کنند.

پنجره های نما، از صفحاتی آلومینیومی قابل تنظیم در برابر آفتاب و سایه تشکیل شده است. بنابراین آنها به عنوان یک فیلتر بسیار عالی در خدمت ساکنین می باشند. شکل کلی پلان آپارتمان، شبیه حرف U می باشد، که به نفوذ بهتر آفتاب و تهویه طبیعی مناسب کمک شایانی کرده است. در طبقه همکف این مجموعه نیز، یک سری خدمات عمومی مثل فروشگاه، داروخانه و کافی شاپ دیده می شود که هم برای ساکنان و هم برای افراد محل قابل استفاده می باشند.















منبع:arthut.co
 

hnfati

عضو جدید


در پردیس پارک سیفانگ، معمار چینی، ونگ شو، ساخت اقامتگاه سان هی را در میان جنگلی انبوه به پایان رسانده است. دو فرم مجزا شامل فضاهای زندگی، به وسیله ی یک حیاط مرکزی و استخر از یکدیگر جدا شده و به وسیله ی حجمی مستطیل شکل با نمایی شیشه ای رو به این حیاط و نمای هندسی خارجی، به هم متصل می گردند. علاوه بر این، این حجم واسط، شامل پلکان دسترسی به طبقات بالاتر نیز می باشد.​
بدنه ی فضاهای خصوصی، با پوششی از آجرهای موزاییکی آبی، نمای خاکستری ماهرانه ای را ایجاد نموده اند که به وسیله ی بازشوهای متعدد و درب های چوبی نارنجی، مزین شده اند. سایبان بتنی زیبایی با الهام از شکل خانه های سنتی چینی بر روی فضاهای زندگی این خانه کشیده شده است و همچون یک سایه انداز و شیروانی مناسب عمل می نماید.​

.

.

.

.

.

.

.

.

.
 

hnfati

عضو جدید
در نزدیکی روستای نروژی، گیلو، معماران رولف رمستاد، خانه ای طراحی نموده اند که بازتفسیری معاصر از تکنیک های بومی و محلی منطقه را به نمایش می گذارد. این خانه با چهار اتاق خواب و جدا نمودن بخش خواب و غذاخوری در ساختمان، دارای یک سالن جوانان و نیم طبقه ای برای کودکان نیز می باشد.​
جهت پوشش ساختار مشخص در نماها، از قطعات چوبی پیوسته در نماسازی این ساختمان استفاده شده است.این چوب، به مرور زمان به زنگاری خاکستری تغییر رنگ می دهد تا به طور طبیعی در محیط اطراف خود، ترکیب گردد. تمامی سطوح داخلی و سقف ها به وسیله ی چوب هایی بدون گره، نازک کاری شده اند.​
اتاق خواب اصلی ساختمان، با پنجره ای شیروانی شکل، چشم اندازی گسترده از آسمان را خواهد داشت؛ در حالی که در انتهای پلان، در سالن جوانان به واسطه ویژگی های نیم طبقه ای که در آن واقع است، چشم اندازهایی از پیست اسکی مجاور به چشم می خورد.​
نماهای خارجی

نماهای خارجی

نماهای خارجی

نماهای خارجی

نماهای خارجی

فضاهای داخلی

فضاهای داخلی

فضاهای داخلی

فضاهای داخلی

فضاهای داخلی

فضاهای داخلی

فضاهای داخلی

برش

برش

نما

پلان ها

نمای کلی

نمای کلی

مـنـــــــبـع : www.designboom.com
 
آخرین ویرایش توسط مدیر:

hnfati

عضو جدید
در این خانه ی دو طبقه که بر بالای تپه ای در استرالیا قرار دارد،یکی از طبقات به شکلی متزلزل روی طبقه ی زیرین سوار شده است.طراحی این بنا را گروه معماری دنتون کروکر مارشال Denton Croker Marshall انجام داده است. پایه ی این بنا به شکلی رویایی،نیم رخ سایه روشن دار این خانه را،که از شراب سازی منطقه ی ویکتوریا قابل رویت است،به خوبی تعریف می کند.​
بخش بیرونی طبقه ی زیرین از فولاد آب دیده ساخته شده و طبقه ی بالایی ،دیوارهایی از آلومینیوم سیاه دارد.نئوپان های زیبایی دیوارها و سقف های هر دو طبقه و کف طبقه ی بالایی را پوشش داده،در حالیکه کف طبقه ی پایین یک سطح بتنی صیقل خورده دارد.​
view hill house

view hill house

view hill house

view hill house

مـنـــــــبـع : www.dezeen.com
 
آخرین ویرایش توسط مدیر:

hnfati

عضو جدید
بخشی از نمونه کارهای انزواطلبانه ی ریچارد برانسون، یک کمپ سافاری و سیاحت لوکس با نام "ماهالی مزوری" ست که در 240 کیلومتری غرب نایروبی در کنیا به تازگی افتتاح گشته است.​
این اردوگاه که در اکوسیستم ماسای مارا واقع شده است، به منظور به حداقل رساندن اثرات تخریبی زیست محیطی با سازه ی سبک ساخته شده است. در همکاری با جامعه ی همسایه، در ساخت این مجموعه از یک روش پایدار و کارگران محلی و متريال های منطقه استفاده گشته است. این برنامه شامل دو نوبت رانندگی و پیاده روی و تور در دهکده های اطراف و همچنین استخر و اسپای درمانی نیز برای میهمانان می باشد.​
دوازده سوییت چادر شکل با سکویی بزرگ مشف به دشت های وسیع و دره ی روبه رویشان بر تپه ای قرار گرفته اند. هر یک از این سکونتگاه های مجزا شامل یک سالن استراحت و اتاق خوابی بزرگ با حمامی زیبا می باشد. تکمیل شده با پارچه های برزنتی مخصوص بایدیزاین، این سازه های سبک به سادگی با زمین اطراف و آب و هوای منطقه سازگار و به واسطه ی سایبان های خمیده شان به صورت بصری در محیط زیست منحصر بفردشان ترکیب شده اند و به طرحی اصیل از هماهنگی میان عناصر سنتی و معماری منطقه ای را شکل داده است.
فضاهای داخلی با مبلمان سفارشی توسط ریل استودیوز، همراه با اتصالات نورپردازی بامبو و مبلمانی چوبی تزئین گشته است.
.

.

.

.

.

.

.

.

.

.

.

.

.

.

مـنـــــــبـع : www.designboom.com
 
آخرین ویرایش توسط مدیر:

hnfati

عضو جدید
این خانه در بوته های نسبتاً شیب دار, چنانچه یک سایت چند صد متری در بالای یک دره از ماسه های طلایی ساحل پالم جزیره ی وایهکی را پوشش داده, واقع شده است. جای گیری خانه در زیر یک درخت پاهوتوکوا بزرگ سایت را با مجموعه ای از فضاهای درونی و بیرونی معلقِ مرتبط شده توسط پل های خارجی و پله ها مواجه کرده است.​
مالکان این خانه به منظور سیرکولاسیون از یک اتاق به اتاق دیگر یک گام به جلو برداشتند. بعلت دسترسی دشوار و امید به حداقل ضایعات, طراحی براساس سایز صفحات تولید شده در کارخانه بود, و می توانست با دست حمل شود, و مستقیماً در مکان بدون نیاز به برش ثابت قرار گیرد. چسب روکش چوب به شکل گسترده ای در چارچوب استفاده شده و این بار هم با دست حمل و در سایت یک تکه شدند. یک پل متحرک اجازه داده خانه خودش را از زمین جدا کند, و به کاربرانش یک حس محرمیت دهد, چنانچه ساکنین احساس کنند, بر روی یک درخت زندگی میکنند.​
...

...

...

...

...

...

...

...

...

مـنـــــــبـع : www.archdaily.com
 
آخرین ویرایش توسط مدیر:

hnfati

عضو جدید
ما این حُسن معماری که ساخت یک خانه معلق در هوا, شناور بر روی آب را ممکن می سازد می ستاییم. فرن سیلوستر این طرح ناگهانی را بر زمینی مشرف به دریا در اسپانیا بنا کرد. جایی که از هیچی بهترین را ساخته اند, این فضا دعوت به ماندن می کند. قطعه ای که خطوط طبیعی زمین که مجموعه در آن بنا شده را محترم می شمارد. در بالا یک سایه, خود خانه آرامش را در دریای مدیترانه جستجو می کند. زیر خورشید استخر ما را به دریا نزدیک می کند, و به یک پناهگاه ساحلی آرام تبدیل می شود. نقطه ی عطف این بنا, راه پله ای است که یک مسیر خاطره انگیز و باغی در زیرزمین را ارائه می کند. با توجه به شیب زمین, مهار خانه در یک سطح انجام شده است. یک سازه ی سه بعدی از قطعات بتن مسلح و دیوارهایی که با توپوگرافی زمین انتخاب شده مطابقت دارند. بر این سیاق زیرسازی ساختمان به حداقل می رسد. این سنگ یکپارچه سازه که یک سکوی افقی از سطوح قابل دسترسی تولید کرده - جایی که خانه قرار گرفته است - را مهار می کند . استخر بر سطح پایینی ساختمان در ناحیه ای صاف از سایت واقع شده است. سازه بتنی از جبهه ی بیرونی عایق و سپس با گچ آهک سفید و صاف پوشانده شده است. باقی مصالح, دیوارها, پیاده روها و سنگ ریزه ها بر روی بام همه در همان رنگ به معماری سنتی منطقه پاسخگو و هم زمان مؤکد وحدت خانه می باشند.
...

...

...

...

...

...

...

...

...

...

...

...

...

...

...

مـنـــــــبـع : www.archdaily.com
 
آخرین ویرایش توسط مدیر:

hnfati

عضو جدید
اين خانه ي مجزا، كه توسط دفتر معماري نِم طراحي و اجرا گشته، در منطقه جنتيلي در نزديكي پاريس، در ميان خانه هاي پي در پي خيابان ريموند لفوره واقع شده است. فاصله ي بوجود آمده تا ساختمان مجاور، چشم اندازي بي بديل از دره ي بيوِر و برج هاي آن را به وسيله ي فريم بندي نماي مقابل خانه، بوجود آورده و اين منظره ي روستايي پراكنده اما آرام را قاب بندي نموده است.
فاصله ي ميان دو خانه، شكستي در يكنواختي اين چشم انداز شهري بوجود آورده و موجب تاثير شگفت آوري در نماي شهري در اين خيابان مرتفع گشته است؛ در حاليكه نماي آن همچون روباني كشيده شده از نماي خانه ي مجاور، به نظر مي رسد.​
معماري اين همسايگي تا حدودي متفاوت مي باشد و از خانه ها و ساختمان هايي تشكيل شده است كه هر چند كم اما به يكديگر شبيه مي باشند. ساختمان نخست، بسيار باريك با دو طبقه مي باشد و يك اتاق زيرشيرواني خالي از سكنه دارد. در ساختمان سمت چپ كه تفاوت هايي دارد، درست در جايي كه لچكي ساختمان تمام مي شود، ديوار باربري قرار دارد. درب باغ با فاصله سه متر از ديوارها، فضاي مناسبي را در ورودي بوجود آورده است.​
با توجه به ويژگي هاي سايت پروژه، ايده ي كابين معلق در پاسخ به نياز فضايي فوق العاده بزرگ و تمايل كارفرما به حفظ پاركينگ خودرو و استفاده از يك سرپناه براي آن، بوجود آمده است. به عنوان يك ساختار منفك، اين فضاي الحاقي با استفاده از ستون هاي پنهاني به شيرواني خانه متصل و ثابت شده است.​
گسترش نماي فلزي به نوعي انتزاع و شفافيت را نشان مي دهد؛ اين پنجره تنها در شب و زماني كه نور به بيرون مي تابد، مشخص مي گردد. پنجره ي بزرگ نماي پشت، به بهترين شكل ممكن، چشم انداز دره را قاب بندي مي نمايد.​
اين قسمت الحاقي در دو سطح ساخته شده است و از طبقه دوم خانه قابل دسترسي مي باشد. سطح اول كه قسمت مطالعه مي باشد توسط سه پله از سطح بالايي كه اتاق خواب مي باشد، جدا گشته است. در نهايت سه پله ي ديگر اين قسمت را به اتاق شيرواني خانه كه بازسازي شده و در اين تغييرات، كف آن نيز پايين برده شده است، متصل مي كند.​
نماي اصلي پروژه

چشم انداز پنجره گسترده ي پروژه به دره

فضاي داخلي ؛ اتاق مطالعه

فضاي داخلي ؛ اتاق مطالعه

فضاي داخلي

پلان پروژه

روف پلان

نماي سابق خانه

نماي كنوني پروژه

نماي سابق خانه

نماي كنوني پروژه

برش

برش از همسايگي پروژه

سايت پلان و جانمايي پروژه

مـنـــــــبـع : www.archdaily.com
 
آخرین ویرایش توسط مدیر:

hnfati

عضو جدید
به دور از تصاویر رایج و مورد انتظار از لاس وگاس، صحرا بخش دیگری از نوادا را شکل می دهد و این رنگ ها، متريال ها و معماری اند که به دنبال ترکیب این عوامل برای رسیدن به ایجاد یک مسکن مناسب همخوان با محیط تلاش می کنند. شرکت محلی اسمبلیج استودیو به تازگی این خانه ی منحصر بفرد را در حومه ی وگاس به پایان رسانده است.​
این طراحی با مبنای امتداد لندسکیپ طبیعی منطقه، به انباشتن و جایگذاری حجم هایی جعبه مانند بر روی توپوگرافی زمین مجموعه انجام گرفته است. شکاف های میان فرم های سلب، توسط سایه و آب خنک می گردند و تداعی کننده ی محیط زیست کوه های قرمز رنگ و صخره ای اطراف می باشند. اتاق های خواب در طبقات زیرزمین و اول از هم جدا گشته اند و طبقه همکف را که شامل فضاهای اجتماعی و حیاط های متفاوت می باشد را در بر گرفته اند؛ کانسپتی که باعث می گردد این خانه ی منفرد به طور طبیعی خنک بماند.​
نماهای خارجی

حیاط های متنوع در طبقه همکف

حیاط های متنوع در طبقه همکف

پلکان دسترسی به اتاق های خواب طبقه اول

سالن استراحت در فضای باز به همراه سایه انداز

اتاق نشیمن

اتاق نشیمن

اتاق نشیمن

آشپزخانه

بار

لوستر تندیس گون

اتاق خواب

حمام

حیاط سرپوشیده

نماهای خارجی

نماهای خارجی

پلان ها

برش

مـنـــــــبـع : www.designboom.com
 
آخرین ویرایش توسط مدیر:

hnfati

عضو جدید
جهت تسریع در زمان ساخت و ساز و تقسیم سیستم راه اندازی، دفاتر سونه میلر و سیویتاز، با همکاری یکدیگر پروژه طراحی " خانه 63 " را در سائوپائولو، برزیل به پایان رسانده اند. این خانه مسکونی در دو طبقه، با سازه ای فلزی و از طریق 6 مدول در کنار هم ساخته شده است.​
برنامه ی ساخت این خانه 470 متر مربعی، طبقات را در اختیار کامل ساکنین قرار داده و بخش های جمعی و تفریحی را در تراس و باغ در طبقه اول و پشت بام در نظر گرفته است. تعامل میان متريال های بومی و روستایی چون منسوجات و چوب با متريال های سردتری همانند شیشه و سازه ی فلزی، به این پروژه ظاهری صنعتی بخشیده است.​
با بهره بردن از تهویه متقابل دائمی و " اثر دودکش " ار طریق پنجره ها و سقف بلند، محیط داخلی این خانه با شرایط اقلیمی گرم کاملا سازگار شده است. اتاق ها نیز به واسطه ی درها و پنجره هایی وسیع که کاملا باز می گردند دارای تهویه به فضای خارجی می باشند. پشت بام سبز پروژه نیز، با عملکردی همچون عایق، یک مکان اوقات فراغت دائمی را پدید آورده است.​
ایده ی رنگ آمیزی پلکان ها به رنگ زرد، جرقه ای خلاقانه جهت ایجاد حس کنجکاوی در بازدیدکنندگانی ست که به پلکان فلزی دسترسی داشته باشند. با بالا رفتن از این پلکان، به سطحی چوبی، با فضایی سبز و باغی خصوصی می رسید که با ورقه های فلزی احاطه شده است. علاوه بر پوشش صفحات گرمایی، سیستم استفاده مجدد از آب باران و سیستم تولید برق خورشیدی، با تولید 200 کیلو وات انرژی برق در هر ماه، مصرف انرژی ساکنان خانه را به سادگی تامین می نماید.
.

.

.

.

.

.

.

.

پلان سطح اول

پلان سطح دوم

پلان بام

نما

نما

نما

نما
مـنـــــــبـع : www.archdaily.com
 
آخرین ویرایش توسط مدیر:

hnfati

عضو جدید
در دهکده ای از لیز، در میان کلبه های تیره ی کوهستان های سوئیس، دو خانه ی مخصوصص تعطیلات از پیتر زومتور، در میان سایت روستایی و غالبا برفی، افتتاح شده اند. زومتور فرنهاوزر، آژانسی که مسئول اجاره این خانه های آفتابی به میهمانان می باشد، عکس های اختصاصی زمان زمستان این دو خانه با نام های اوبرهاس و انترهاس، حجم هایی از نور و روشنایی در کوهستان های پرشیب را به اشتراک گذاشته است.​
متاثر از تصورات بلند مدت و غنی از احساس آنالیزا زومتور [ همسر پیتر زومتور ] از یک خانه ی چوبی، معمار طرح، مجموعه ای از خانه های خانوادگی همچون ترکیبی از حجم های چوبی نفیس، طراحی نموده است که با روزنه های وسیع و فرورفته، بلافاصله در سایت قابل تشخیص و تمیز می باشند. پوشش گسترده ی خانه ها به دنبال یک زبان معمارانه ی فصیح از اتصالات و مفاصل دست ساز بوده است.​
.

.

.

.

.

.

.

.

.

.

.

.

.

.

مـنـــــــبـع : www.designboom.com
 
آخرین ویرایش توسط مدیر:
بالا