وحید امیریان
عضو جدید
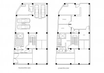
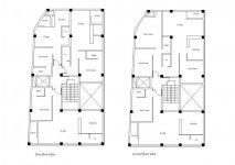
ممنون دوست عزیز کارتون خوب شده فقط ایراد اساسیش ایناس 1. این سه شمشیری 2. زیر جک معلول و سه تا پله ورودیه به ساختمان احتمالا سر گیر بشه کد ارتفاعی زیر زمینت چند شده؟
خیلی ممنون مهندس که ظرحمو دیدین -260 التبه 3 تا هم زیرزمین پله دادم


