سلام ممنونم از توضیحات خوبتون
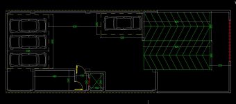
ابعاد پارکینگ از لبه ستون ها گذاشتم
مشاهده پیوست 180636
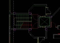
نمیدونستم رمپو چجوری بکشم حالا یه نگاهیم به این بندازین
مشاهده پیوست 180637
آقای فرزاد شما تری دی هم کار میکنید؟
سلام.
خواهش میکنم.
دستتون درد نکنه.از همین اول راههای فرار رو یاد نگیرید بهتره

نه رمپتون درست نیست.اول عرض رمپتون باید حداقل 3.5 متر باشه.شعاع گردش آکس رمپتون(قوس وسط)حداقل باید 6.5 متر باشه.طول رمپتون واسه رفتن از کد 0.00 به کد 2.40- ، 16 متر محاسبه میشه.فضای ایست و گردش هم یه مربع با ابعاد حداقل 5*5 .رمپش یکم داستان داره.بزارید ببینم اصلا در میاد
نه من مدلم رو با آرشی کد کار میکنم و رندرم رو با مکس میگیرن دوستان.
			
				آخرین ویرایش: 
			
		
	
								
								
									
	
								
							
							 
				 
 
		
 
 
		
















 
 
		



